Sprzedane
Bytom, śląskie, Polska



















REZERWACJA !!!!! 2 Pokojowe Gotowe do Zamieszkania
Mieszkanie na sprzedaż, cena 211000 PLN, 5999 PLN/m2, powierzchnia 35 m2Bytom, śląskie, Polska



















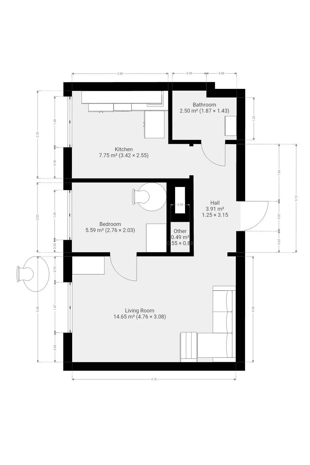
Biuro WISTO Nieruchomości prezentuje funkcjonalne mieszkanie o powierzchni 35,17 m², położone na 1. piętrze w zadbanym budynku wielorodzinnym. To propozycja idealna zarówno dla osób szukających własnego kąta, jak i dla inwestorów pod wynajem.
Opis mieszkania:
Mieszkanie składa się z:
salonu – jasnego i ustawnego, z miejscem na część wypoczynkową i jadalnianą,
sypialni, która zapewnia komfort i prywatność,
oddzielnej kuchni w pełni wyposażonej,
łazienki z WC,
piwnicy o powierzchni 5,94 m², idealnej na przechowywanie.
Kilka lat temu w mieszkaniu przeprowadzono generalny remont, który objął wszystkie najważniejsze instalacje oraz wykończenie wnętrz. Dzięki temu lokal jest w bardzo dobrym stanie technicznym i nie wymaga dodatkowych nakładów finansowych.
Dodatkowo mieszkanie jest w pełni umeblowane i wyposażone – gotowe do wprowadzenia od zaraz.
Na uwagę zasługuje także własne ogrzewanie gazowe, które daje niezależność i kontrolę nad kosztami.
Koszty utrzymania:
czynsz: około 280 zł (niski, atrakcyjny jak na tę lokalizację),
dodatkowo opłaty według zużycia mediów.
Lokalizacja – Bytom, Rozbark:
Mieszkanie położone jest w cichej i spokojnej dzielnicy Rozbark, w otoczeniu niskiej zabudowy i terenów zielonych. Lokalizacja zapewnia wygodny dostęp do pełnej infrastruktury miejskiej oraz komunikacji publicznej.
W pobliżu znajdują się m.in.:
-sklepy, punkty usługowe i apteki,
-szkoły i przedszkola,
-tereny rekreacyjne i zielone,
-szybki dojazd do centrum Bytomia oraz sąsiednich miast aglomeracji.
Najważniejsze atuty mieszkania:
-generalny remont wykonany kilka lat temu,
-funkcjonalny układ – 2 pokoje + piwnica,
-pierwsze piętro,
-własne ogrzewanie gazowe,
-niski czynsz – ok. 280 zł,
-gotowe do zamieszkania od zaraz,
-spokojna i dobrze skomunikowana okolica.
Nie czekaj – skontaktuj się z nami i umów na prezentację!
Opis mieszkania:
Mieszkanie składa się z:
salonu – jasnego i ustawnego, z miejscem na część wypoczynkową i jadalnianą,
sypialni, która zapewnia komfort i prywatność,
oddzielnej kuchni w pełni wyposażonej,
łazienki z WC,
piwnicy o powierzchni 5,94 m², idealnej na przechowywanie.
Kilka lat temu w mieszkaniu przeprowadzono generalny remont, który objął wszystkie najważniejsze instalacje oraz wykończenie wnętrz. Dzięki temu lokal jest w bardzo dobrym stanie technicznym i nie wymaga dodatkowych nakładów finansowych.
Dodatkowo mieszkanie jest w pełni umeblowane i wyposażone – gotowe do wprowadzenia od zaraz.
Na uwagę zasługuje także własne ogrzewanie gazowe, które daje niezależność i kontrolę nad kosztami.
Koszty utrzymania:
czynsz: około 280 zł (niski, atrakcyjny jak na tę lokalizację),
dodatkowo opłaty według zużycia mediów.
Lokalizacja – Bytom, Rozbark:
Mieszkanie położone jest w cichej i spokojnej dzielnicy Rozbark, w otoczeniu niskiej zabudowy i terenów zielonych. Lokalizacja zapewnia wygodny dostęp do pełnej infrastruktury miejskiej oraz komunikacji publicznej.
W pobliżu znajdują się m.in.:
-sklepy, punkty usługowe i apteki,
-szkoły i przedszkola,
-tereny rekreacyjne i zielone,
-szybki dojazd do centrum Bytomia oraz sąsiednich miast aglomeracji.
Najważniejsze atuty mieszkania:
-generalny remont wykonany kilka lat temu,
-funkcjonalny układ – 2 pokoje + piwnica,
-pierwsze piętro,
-własne ogrzewanie gazowe,
-niski czynsz – ok. 280 zł,
-gotowe do zamieszkania od zaraz,
-spokojna i dobrze skomunikowana okolica.
Nie czekaj – skontaktuj się z nami i umów na prezentację!
| Informacje podstawowe | ||
|---|---|---|
| Rodzaj nieruchomości | Mieszkanie | |
| Rodzaj transakcji | Sprzedaż | |
| Rynek | Wtórny | |
| Województwo | śląskie | |
| Miejscowość | Bytom | |
| Prąd (przyłącze) | Tak | |
| Woda (przyłącze) | Tak | |
| Gaz (przyłącze) | Tak | |
| Kanalizacja | Tak | |
| Parking | Nie | |
| Rodzaj budynku | Blok mieszkalny | |
| Rok budowy | 1965 | |
| Informacje dodatkowe | ||
|---|---|---|
| Piętro | 1 | |
| Liczba pięter | 2 | |
| Liczba pokoi | 2 | |
| Stan obiektu | Do użytku | |
| Rodzaj kuchni | Oddzielna | |
| Materiał | Cegła | |
| Technologia | Tradycyjna | |
| Ogrzewanie | Gazowe | |
| Dostępność | Natychmiast | |
| Piwnica | Tak | |
| Winda | Nie | |
| Otoczenie | ||
|---|---|---|
| Otoczenie | Osiedle bloków mieszkalnych | |
| Głośność | Cicho | |
| Park | Tak | |
| Bank | Tak | |
| Restauracja | Tak | |
| Bar / pub | Tak | |
| Szkoła podstawowa | Tak | |
| Liceum / Technikum | Tak | |
| Uczelnia | Tak | |
| Żłobek | Tak | |
| Przedszkole | Tak | |
| Basen | Tak | |
| Fitnes | Tak | |
| Pralnia | Tak | |
| Apteka | Tak | |
| Fryzjer | Tak | |
| Supermarket | Tak | |
| Sklep spożywczy | Tak | |
| Weterynarz | Tak | |
Kontakt:
Wioleta Wydzierzecka
Tel.: 573 826 976
Nr ref.: O-421
Wioleta Wydzierzecka
Tel.: 573 826 976
Nr ref.: O-421
